多年专注做好装修一件事
首 页
WORKS
关 于
ABOUT
施工
CONSTRUCT
案例
CASES
新闻
NEWS
领域
FIELD
服务
SERVICE
联系
CONTACT
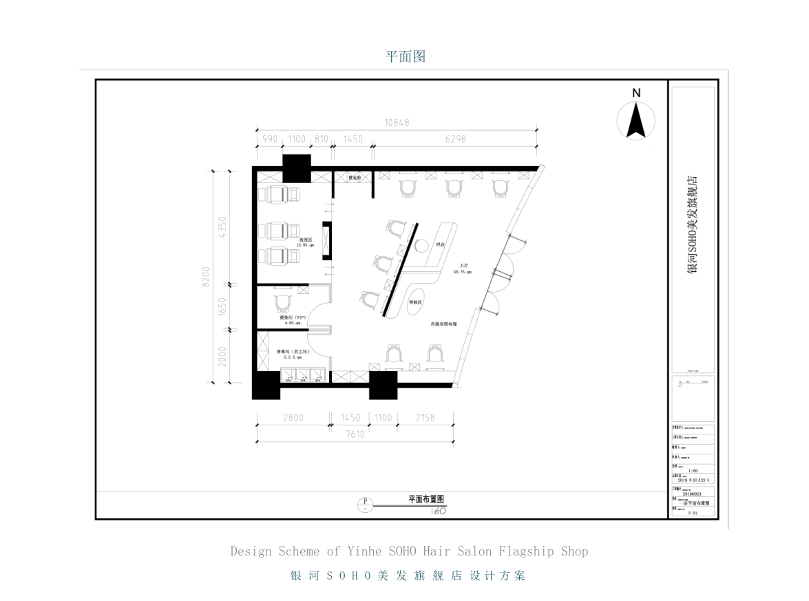
银河SOHO美发旗舰店
项目地址 /
北京
空间类型 /
商业空间
设计师 /
李睿
服务项目 /
设计与施工
项目面积 /
195㎡
项目周期 /
2个月天
造价 /
80万